Проектов в
сравнении:
0
Общая площадь: 326 м²
Террасы,балконы: 21,79 м²
Габариты: 17.1x116.5 м
Наружные стены:
газобетонные блоки 400
Фундамент:
монолитная ж/б плита
Перекрытия:
монолитные ж/б и по деревянным балкам
Крыша:
чердачная
Кровля:
мягкая черепица
Наружная отделка:
лицевой кирпич, фасадные панели
Цоколь:
Искусственный камень
Архитектурный стиль:
в стиле райта
| Паспорт проекта: | 5000 |
|---|---|
| Копия проекта (АС): | 3000 |
| Инженерные сети: | 30000 |
| Электронная копия проекта (pdf): | 7000 |
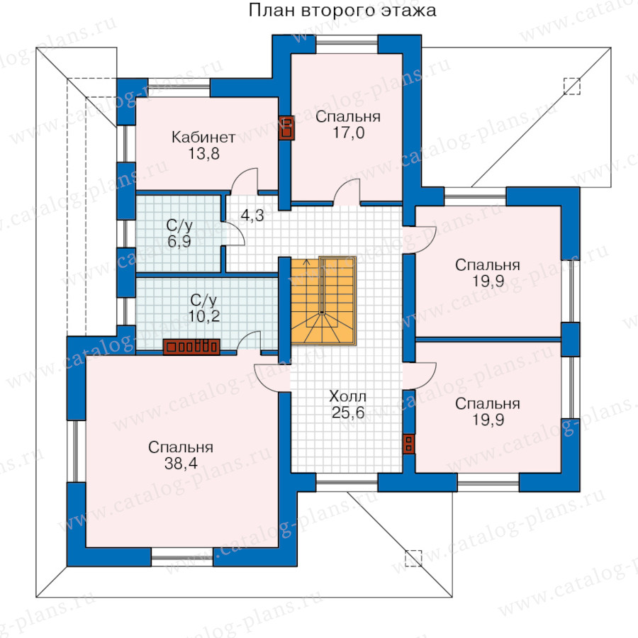
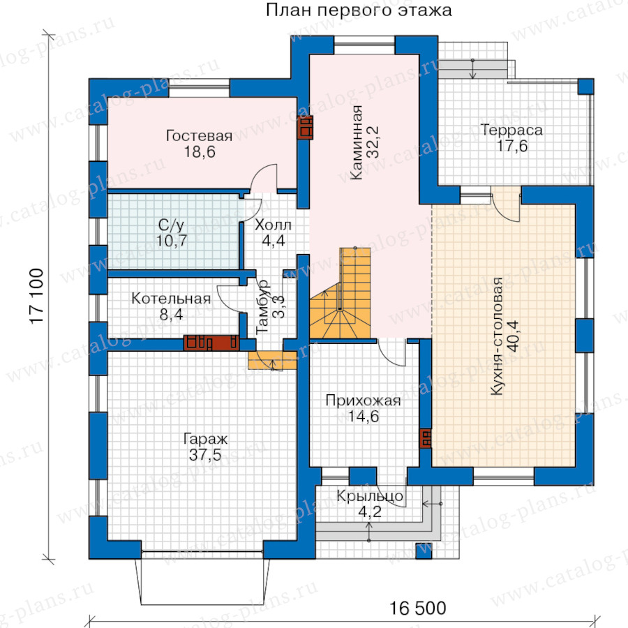
Общая площадь:
326 м²
Террасы, балконы:
21,79 м²
Габариты:
17.1x116.5 м
Высота здания:
8.83 м
| Паспорт проекта: | 5000 р. |
|---|---|
| Копия проекта: | 3000 р. |
| Электронная копия проекта (PDF): | 7000 р. |
Наружные стены:
газобетонные блоки 400
Фундамент:
монолитная ж/б плита
Перекрытия:
монолитные ж/б и по деревянным балкам
Крыша:
чердачная
Кровля:
мягкая черепица
Наружная отделка:
лицевой кирпич, фасадные панели
Цоколь:
Искусственный камень
Архитектурный стиль:
в стиле райта
жилой дом
в стиле райта
2
326
21,79
17.1x116.5
1 автомобиль
нет
нет
21,79
нет
нет
8.83
3.05
газобетонные блоки 400
монолитная ж/б плита
монолитные ж/б и по деревянным балкам
чердачная
мягкая черепица
лицевой кирпич, фасадные панели
нет
монолитная ж/б
Проект дома — это документация, в которой указаны все параметры здания. Документация поможет представить, как будет выглядеть здание снаружи и изнутри, сколько и каких материалов понадобится для возведения. Иногда в состав проекта дома входят дополнительные разделы, которые помогают более детально подойти к возведению — заранее определить тип закладываемых коммуникаций, запланировать на этапе строительства устройство пожарной или охранной сигнализации. Документация понадобится как в процессе строительства, так и при приемке — для контроля качества и соответствия нормам.
Типовой проект — это комплект чертежей, необходимых для
строительства. В проекте должны быть следующие
разделы:
• АРХИТЕКТУРНЫЙ (АР) — описывает общую
информацию, архитектурные решения, содержит поэтажные
планы, чертежи фасадов и основные разрезы, план
крыши, ведомости дверных и оконных проемов;
• КОНСТРУКТИВНЫЙ (КР) — включает
конструкторские чертежи фундамента и других несущих
конструкций, устройства полов, стропильной системы. В
конструктивном разделе указаны требуемые
стройматериалы и их количество.
Такой комплект чертежей всегда входит в проект дома
— это регламентируется государственными
нормативными документами. По желанию заказчика в
проектную документацию включают дополнительные
разделы — например комплект чертежей инженерных
систем.
В частном домостроении, когда строят небольшие по
площади жилые дома, часто ограничиваются
эскизным проектом. Но это первый этап архитектурного
проектирования, его нельзя назвать полным. В
эскизных документах указаны только общие данные,
изображения фасадов и поэтажные планировки.
Полное проектирование с более детальной
архитектурной частью предпочтительнее: даже в
строительстве простых зданий есть нюансы и конструктивные
особенности.
Проектная документация предоставляется на бумажном носителе формата А3, в одном экземпляре, заверенная синей печатью. В состав проекта входят два раздела: АР (архитектурные решения) и КР (конструктивные решения).
Паспорт на проект дома не входит в состав полного комплекта, его можно приобрести за дополнительную плату. Архитектурный паспорт проекта позволяет быстрее и проще оформить разрешение на строительство, так как содержит в себе все документы, необходимые для предоставления в местные органы архитектуры.
Паспорт на проект дома не входит в состав полного
комплекта, его можно приобрести за дополнительную
плату.
Архитектурный паспорт проекта позволяет быстрее и
проще оформить разрешение на строительство, так
как содержит в себе все документы, необходимые для
предоставления в местные органы архитектуры.
Проект предоставляется на бумажном носителе
формата А3 в единственном экземпляре с печатью
организации.
В составе архитектурно-строительного проекта разделы АР/КЖ/КД.
АР — архитектурные решения
КЖ — конструкции железобетонные
КД — конструкции деревянные
Подробнее состав проекта можно посмотреть по ссылке
https://catalog-plans.ru/sostav-proekta
Доставка проекта осуществляется бесплатно, курьерской службой CDEK.
К типовым проектам возможно внесение изменений,
ориентировочную стоимость изменений можно посчитать
в нашем калькуляторе.
Финальную стоимость изменений Вам сможет
озвучить менеджер после получения Технического
задания на внесение изменений, бланк Технического
задания можно скачать здесь.
Паспорт проекта: 5 000 руб.
Копия проекта бумажная (А3): 3 000 руб.
Электронная копия проекта (pdf): 7 000 руб.
В состав ИС входит два раздела (СО и ВК) — отопление, водоснабжение, канализация.
Вариант с радиаторным отоплением и электрическим теплым полом в мокрых помещениях — 30000 руб.
Вариант с отоплением водяным теплым полом и дополнительными
радиаторами в местах больших теплопотерь + 5 000 руб. к
стоимости.
В случае внесений изменений в архитектурно-строительный проект
стоимость разработки типовых инженерных сетей увеличивается.
Индивидуальные инженерные сети:
300 руб. за 1кв. м
Выполняются по техническому заданию Заказчика.
Посадка строения на участке:
3 000 руб.
Выполняется согласно действующим нормам отступов от границ участка.
СПОЗУ:
6 000 руб. (пример)
Схема планировочной организации земельного
участка (СПОЗУ) (ранее «генеральный план застройки
участка») — в общем смысле — проектный документ,
на основании которого осуществляется планировка,
застройка, реконструкция и иные виды
градостроительного освоения территорий. Основной частью
генерального плана (привязки дома к участку) является
масштабное изображение, полученное методом графического
наложения чертежа проектируемого объекта на топографический,
инженерно-топографический или фотографический план территории.
Планирование участка:
15 000 руб. (пример 1)(пример 2)
Планировка участка (подробная схема генерального
плана) — это распределение территории участка с
указанием мест для мощения, расположения септика,
скважины, бассейна и различных построек, с учетом
установленных норм (без учета озеленения).
Визуализация проекта (один 3D ракурс и 4 шт. 2D фасада):
15 000 руб.
Выполняется по техническому заданию Заказчика с
указанием цветовых решений тех или иных текстур.
Дополнительный ракурс:
5 000 руб.
Дополнительный рендер:
5 000 руб.




| 64-08L | 298м² | 55000 |
|---|
| 64-08K2L | 300м² | 55000 |
|---|
| 64-08AKL | 345м² | 65000 |
|---|
| 64-08BG | 309м² | 65000 |
|---|
| 64-08AWKL | 345м² | 65000 |
|---|
| 64-08AWAK | 346м² | 65000 |
|---|
Россия:
8 (800) 550 97 96
Москва:
+7(495) 660-39-57
+7(931) 107-22-02
ул. Авиамоторная, д. 12, офис 815
Видеоинструкция как добраться до офиса
Санкт-Петербург:
+7(812) 332-52-25
+7(931) 107-22-00
ул. Кораблестроителей, д. 32, корп. 3
info@catalog-plans.ru
ООО «Проектный Дом»
Юридический адрес: 199397, Санкт-Петербург, улица Кораблестроителей, д. 32, корп. 3, пом. 72Н
ИНН 7801596620
КПП 780101001
ОГРН 1137847081822
Северо-Западный Банк ПАО «Сбербанк России» г. Санкт-Петербург
Расчётный счёт 40702810855040000275
Корреспондентский счет 30101810500000000653
Офис в Москве
Офис в Санкт-Петербурге
Все материалы сайта catalog-plans.ru являются предметом авторского права. Ответственность за нарушение авторских прав регулируется 4 частью Гражданского кодекса РФ. Запрещается копирование, распространение визуализаций на других интернет ресурсах, внесения изменений и продажа архитектурных проектов. Продажа архитектурных проектов «Однократную лицензию на строительство» осуществляется с разрешения правообладателя на основании соответствующего договора.
Проекты Коттеджей 2002-2025